Detalles
Lujoso hall de entrada.
Cochera opcional fija.
Semipiso de categoría con palier privado y suite con vestidor.
Pisos y zócalos de madera flotante de primera calidad en todos los ambientes.
Revestimientos cerámicos en piso y pared de primera calidad.
Artefactos y griferías de primera calidad.
Muebles de cocina completos (con alacena y bajo mesada) y mesada de granito.
Carpintería exterior con marco y hoja de aluminio.
Frentes de placard corredizos con guía de aluminio e interiores completos.
Instalación de agua caliente y calefacción con caldera individual.
Instalación preparada para recibir splits frío-calor.
Portero eléctrico visor con cámara en planta baja.
Monitor en unidades opcional.
Portón de acceso a cocheras automático con control remoto.
Amenities: S.U.M en 8º piso, pileta y solarium.
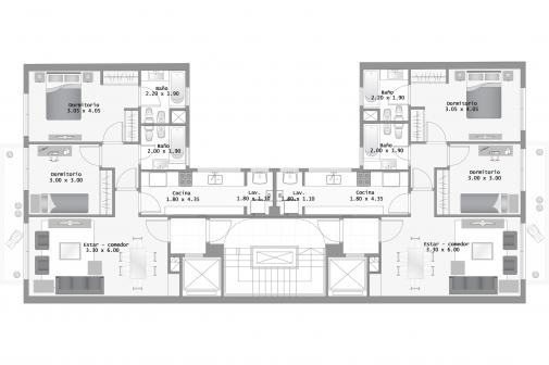
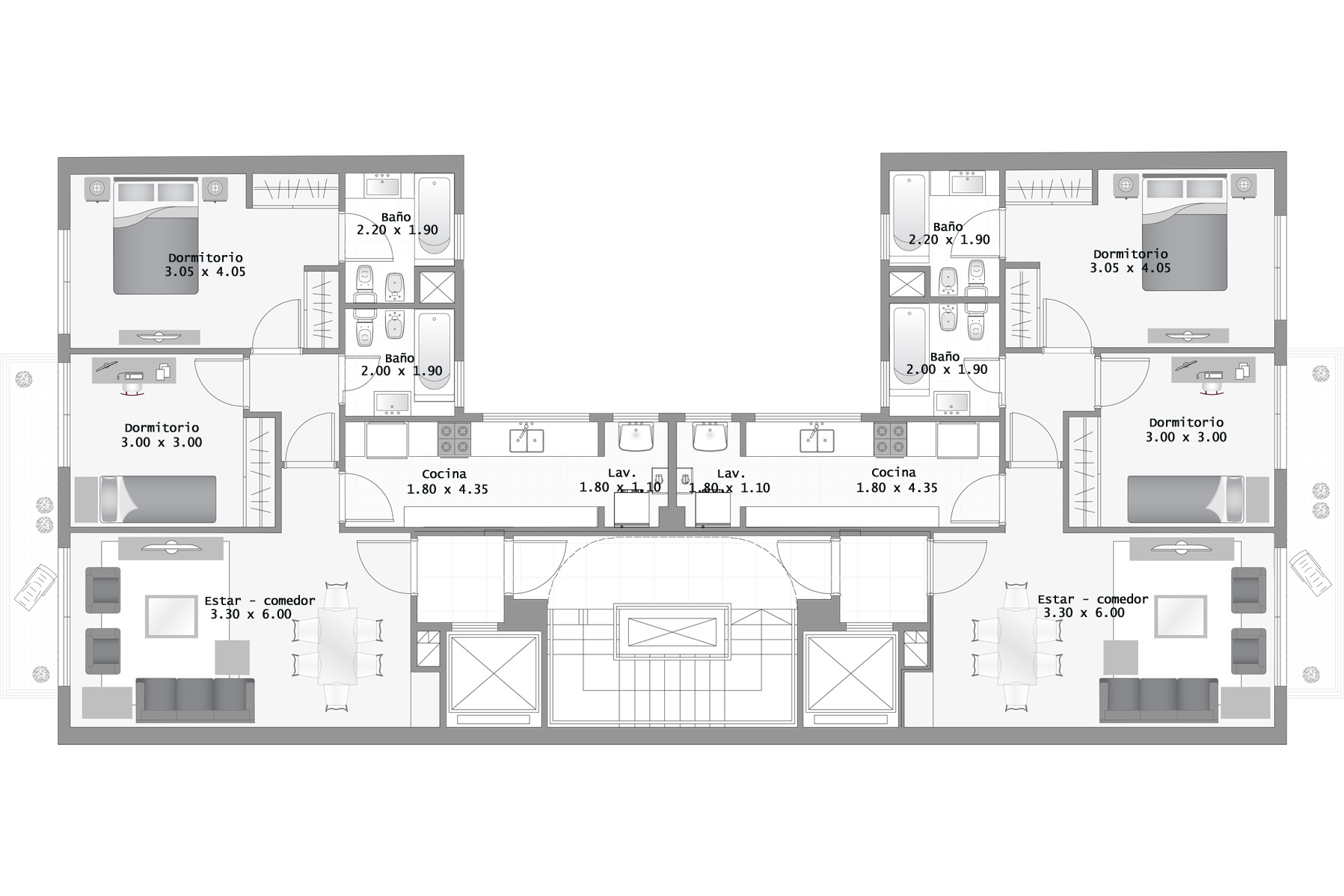
Plantas
Planta subsuelo
Planta baja
1º piso
2º - 7º piso
8º piso
9º piso
10º piso
Ubicación








